• 项目名称:别墅空间设计案例 (C)
  • 项目类型:叠拼别墅
  • 项目地址:青岛龙湖舜山府
  • 项目面积:900㎡
  • 设计总监:刘柯 Louise Liu

「 设计说明 」


整体设计以简约为主,线条洗练,家具规整,去繁存简、不做过多的装饰,弥漫出意式理性色彩与人文关怀。 融合了功能和美观,旨在鼓励探索和互动。

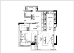
「 负一层入口区域设计方案 」


入口模拟乐高展示,钢琴区简约实用,水吧和休息区提供舒适的社交空间。

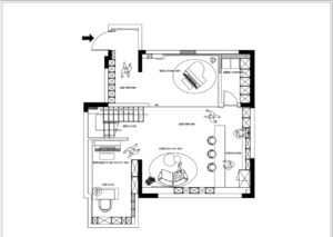
「 书房设计方案 」

书房通过天窗显得明亮宽敞,而钢琴私教区考虑了照明和美观。

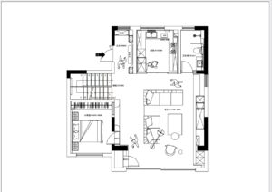
「 楼梯间设计方案 」

玄关设计用简洁线条和色彩打造整洁。

「 入户玄关设计方案 」

客厅区域设计方案

厨房区域设计方案

一楼卫生间设计方案

主卧室设计方案

主卧室衣帽间设计方案

儿童房设计方案

二楼卫生间设计方案


类似案例