• 项目名称:别墅空间设计案例(A)
  • 项目地址:中国 · 青岛即墨
  • 项目面积:500㎡
  • 设计总监:刘柯 Louise Liu

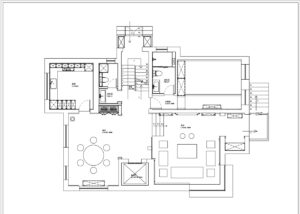
「 设计方案图 」

「 设计说明 」


整体设计注重的是“百味”统一的理念,营造出中式的情趣和特色,在设计中遵循利用细节来表现装饰,让居住空间充满朴素大气的个性化魅力。

「 负一层茶室设计方案 」


在设计中运用中式装饰风格,又融合了现代设计,将传统特色与现代元素交相辉映,既儒雅又现代,表达出现代人对于新的人文雅居的追求。

丰富的装饰纹饰、图样,以及较深的色彩,实木家具陈列其中,给人带来沉稳厚重,古韵古香彰显成熟的装饰氛围。

「 负一层会客区设计方案 」

在空间中与时俱进的融入一些现代的元素,现代的材质,现代的设计理念,现代的造型元素。在现代元素的点缀之下,中式传统风格显得更加有活力,有生命力。

设计师更加注重简洁、干练、英朗的直线条,使整体空间看起来井然有序,特别的整洁,并非杂乱无章的美观。

「 负一层楼梯间设计方案 」

负一层楼梯间的地面区域我们决定采用搭建玻璃的形式,让空间更明亮、宽敞的同时,也实现更高的利用率。

「 负一层影音室设计方案 」

影音室的正上方吊顶部分采用线条灯加灯珠的星空顶设计,搭配灯带的蓝光设计,在保证功能性的前提下又满足了整体空间的美观性,足不出户便能享受极致的观影感觉。

整体色彩以黑、灰两色为主,搭配白色、蓝色,简单的配色带动视觉变化、使整个空间更加有生命力。

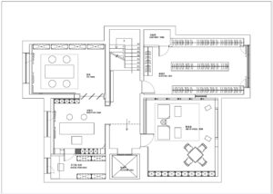
客厅区域设计方案

客厅的墙面及顶面采用较多线条的设计,引导观看者把视觉点规整为有次序的视觉元素,整体空间通过侧重精美、精致,比如巧夺天工的雕刻技术,以及客厅家具的繁复美感,一眼看上去绝对不能是空空的感觉,而且深邃引人入胜,甚至是勾起人们一探究竟的欲望。

在空间中设计师特别注重颜色的把控,大多数以红棕色、深棕色为主,辅之灰色和白色,起到画龙点睛之笔。中式风格的颜色偏沉稳一些,并非很明亮,跳跃色几乎不存在,色彩色系统一,使整体更美观。

空间中绿色植物是不可或缺:除了在室内摆放绿萝、凤尾竹、滴水观音等,还摆放树雕、盆景类的植物。

中国人的好客精神,在别墅空间布置中可见一斑。古朴的红木家具,庄重优雅的屏风和书画墙饰设计,一盏清香四溢的茶具,瞬间就拉近了主客之间的距离。

餐厅区域设计方案

餐厅区域更加落实运用对称的结构,餐厅本身面积就非常大,设计师通过合理搭配制造出层次感,让人一眼看上去就不会特别的空旷。给人视觉上一种由小变大、由浅入深的神秘佳境之感。

一楼走廊设计方案

在空间中提炼了传统中式分割的经典元素,融合东方美学,属于中式独有的浪漫。

厨房设计方案

一楼次卧卫生间设计方案


类似案例