• 项目名称:平层住宅设计案例 (A)
  • 项目地址:中国 · 青岛 卓越天元
  • 项目面积:230㎡
  • 设计总监:刘柯 Louise Liu

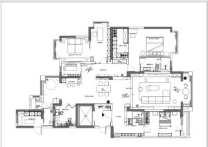
「 平面图 」

「 设计说明 」


侘寂之美主张“不对称主义”,呈现一种不对称却包容的美。空间布局简约随意,满足基本的功能,保持布局中的“空”与简约风格,呈现侘寂风的随性美。。

「 客厅区域设计方案 」


客厅采用灰色和木质饰面,亚麻家具增添和谐感。微水泥带来细致纹理,地面瓷砖强调个性。。

「 入户区域设计方案  」

入户区展现侘寂风格,简约设计搭配温暖色调。

「 餐厅区域设计方案 」

餐厅用玻璃砖活跃光线。

「 水吧设计方案 」

水吧区以传统材料显稳重。

走廊区域设计方案

走廊的墙面及顶面采用较多线条的设计,引导观看者把视觉点规整为有次序的视觉元素,通过简洁的线条,使空间更干净大方、利利落落;整体色彩以米、灰两色为主,搭配白色、木色等原色,简单的配色带动视觉变化、使整个空间更加有生命力。

走廊的墙面采用“拱形”的设计,它圆润的弧度在视觉上就给人一种非常和谐的感觉,艺术感尤为突出。

书房设计方案

书房区域在于充分利用空间布局、空间中运用LED线条灯搭配点光源筒灯与装饰的吊灯点亮这个居于家中的第二空间,让空间更明亮、宽敞的同时,也实现更高的利用率。书柜部分通过个性化的不规则分隔格局、不仅要为业主创造合适的空间,而且要考虑更加永久的美学,无论是现在还是将来都会受到赞扬。

影音室区域设计方案

影音室区域的房顶上采用星空顶的设计,黑白的色调极具宇宙星空感,并且四周打造了一圈灯带用于补光,让这种科幻感觉更加强烈。

主卧区域设计方案 

主卧区域的入口正上方吊顶采用线条灯,既能避免夜读时产生逆光的投影,在保证功能性的前提下又满足了整体空间的美观性。主卧墙面运用饰面搭配米色艺术漆、其间穿插中国传统藤蔑材料与编织工艺柜门设计、让淡淡的禅味在主卧中蔓延,古朴又不乏时尚。

次卧区域设计方案 

次卧床头背景墙采用米色艺术漆搭配灰色墙板打造而成,简单的点缀更能凸显空间美感。背景墙上打造的横向灯带,墙面看起来更有立体感觉。床头两侧配备了灰色色泽的床头柜,色调选择非常漂亮。

北阳台区域设计方案 

次卧床头背景墙采用米色艺术漆搭配灰色墙板打造而成,简单的点缀更能凸显空间美感。背景墙上打造的横向灯带,墙面看起来更有立体感觉。床头两侧配备了灰色色泽的床头柜,色调选择非常漂亮。


类似案例