如何通过店铺空间的设计留住年轻一代消费群体是本案设计关注的重点。1957年世界上第一个人造卫星发射,自此太空时代正式开启。在当下“太空时代”的背景下,人们对未知空间更加充满探索欲。本案例的设计核心便是抓住当前时代下这一流行趋势,让空间设计理念与店铺、产品有机的链接融合在一起,最大程度的获取流量 提升品牌的商业价值,引领时代消费潮流。
设计方案实拍图
「 外立面 」
万事万物都会有一个初始的状态,从无到有,从无序到有序,迭代完善,交互更替。设计同理,从混沌之初穿梭到未来,从设计初始直至完成。MEYA同样如此,本案设计的灵感是开头提到的“未来”,这个词我们每个人的理解各有所异,它是一个未知的世界,充满着无尽的遐想,让人们产生好奇和向往。
我们希望能够营造一个更为沉浸式的空间,让每位消费者在享受饮品的味觉体验同时,使感官扩散,通过空间内的装置,灯光,曲线等元素的运用带给消费者身心感官沉浸的综合体验。
本案例的设计核心便是抓住当前时代下这一流行趋势,让空间设计理念与店铺、产品有机的链接融合在一起,最大程度的获取流量 提升品牌的商业价值,引领时代消费潮流。
我们希望能够营造一个更为沉浸式的空间,让每位消费者在享受饮品的味觉体验同时,使感官扩散,通过空间内的装置,灯光,曲线等元素的运用带给消费者身心感官沉浸的综合体验。
室内的设计上整体运用了银灰色系来定义了整个空间的格调,具有屈光材质的深色地板有机的链接和映衬了整个空间,使室内空间在视觉上得以放大延伸。
玻璃材质的外侧面,有着天然的镜面通透感,使室内空间构造完整的呈现在行人的视线里。
开放式的吧台设计在空间与视觉上最直观的连接到室内与室外的客人,橙黄色亚克力灯带的加入打破了吧台的沉闷感,而大面积的中庭留白区域也使得落座与外带的客人有效的分流。
顶部的圆形不锈钢装置是整个室内空间设计的核心元素,由不规则弧形灯带围绕其中,结合墙面的发光灯带与半镜面的地板延伸空间以强调超时空概念的氛围感。
空间是交互与沟通的载体。室内座位区域采用阶梯式设计,打破了常规的座位摆设形态,打开了人与人之间的边界,更契合当下年轻人的社交属性。
在“千店千面”的市场需求形态下,专注城市艺术潮流,打造美学空间,相信“美、炸、酷”等视觉冲击力和体验感社交场景空间甚为重要。
入口的门厅外立面的设计上,由三个圆形发光灯体作为主元素。每个发光体的灯光线条做了巧妙的组合,构成了一组月球的演变状态,满月、上弦月、蛾眉月,也象征了月球独有的阴晴圆缺的浪漫。
在沉浸体验式的消费形态下,消费者与产品、空间的交融切入是一个店铺空间感塑造的核心,而主题元素装置的设计便是最直接的表达手段。
场景化艺术装置“宇航员服务生正在为您服务。”
我们精心挑选饮品原料,严格把控制作水准,只为为您奉上一杯充满爱意的新鲜清新和甜蜜。
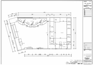
「 平面图 」
「 模型结构拆分图 」



























